











Open Houses
Saturday, 05/02/2026
1:00 - 5:00PM PDT
Sunday, 05/03/2026
1:00 - 5:00PM PDT
Description
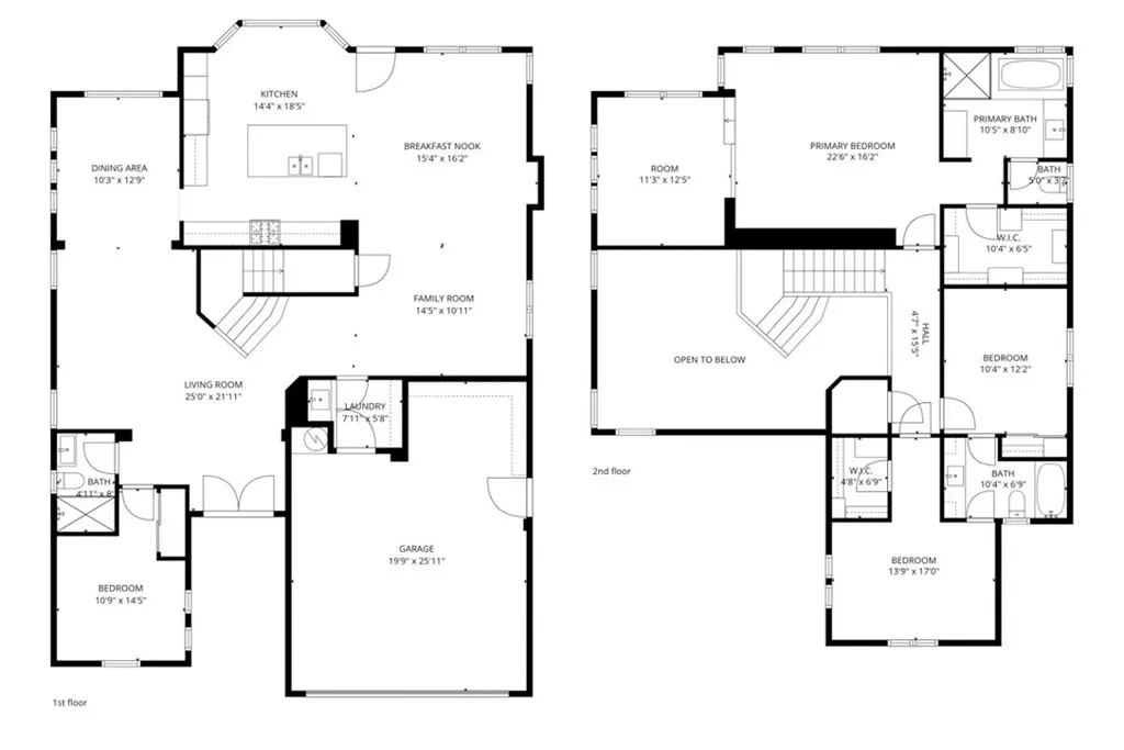
Set within the gated golf course community of Westridge, this exceptionally upgraded residence offers a balanced combination of privacy, thoughtful design, and modern functionality. The home presents with clean curb appeal and a manicured front yard, creating a welcoming first impression. Interior spaces reflect a refined, contemporary aesthetic with double height ceiling, engineered wood flooring throughout the main living areas and plus carpet along the staircase and upstairs hallway. Natural light filters through Milgard double-pane windows, complemented by Hunter Douglas blinds and plantation shutters for added efficiency and privacy. The kitchen is designed for both daily use and entertaining, featuring Wolf appliances, a Sub-Zero refrigerator, Caesarstone quartz countertops, and Omega cabinetry with solid hardwood construction, dovetail drawers, and soft-close functionality. The layout supports a seamless flow between preparation and gathering spaces. Unique to the home are custom hand-laid tiles, backsplash on the kitchen walls and full tiled walls in all bathrooms. All are thoughtfully composed to create visual detail, texture and depth. Additional interior features include recessed lighting, crown molding, and consistent material selections that contribute to a cohesive living environment. Bathrooms are appointed with Porcelanosa ceramic tile, custom vanities, integrated bidets, and intentional lighting, creating a spa-like setting designed for comfort and daily use. Storage and organization are intentional and addressed with custom closet systems, built-in organiz
Location
Listed By
Similar Listings
MLS# NDP2604023
ACTIVE
$2,199,000
4 Beds
3 Baths
Listing Office: Century 21 Affiliated
MLS# OC26091016
ACTIVE
$2,132,021
4 Beds
4 Baths
Listing Office: California Pacific Homes, Inc
MLS# PW26090843
ACTIVE
$2,100,000
4 Beds
3 Baths
Listing Office: eXp Realty of Southern Ca, Inc
MLS# OC26088995
COMING SOON
$1,699,000
4 Beds
3 Baths
Listing Office: Newport & Company
MLS# 260010049
ACTIVE
$1,821,990
4 Beds
5 Baths
Listing Office: The Cove Realty Group
MLS# PW26090107
ACTIVE
$1,775,000
4 Beds
3 Baths
Listing Office: Seven Gables Real Estate
MLS# BB26090449
ACTIVE
$1,699,000
4 Beds
2 Baths
Listing Office: New Avenue Realty & Loans
MLS# 260010041
ACTIVE
$2,199,000
4 Beds
3 Baths
Listing Office: Coldwell Banker West
MLS# 260009988
COMING SOON
$2,195,000
4 Beds
3 Baths
Listing Office: Property Connection
MLS# OC26090358
ACTIVE
$1,698,000
4 Beds
4 Baths
Listing Office: Real Broker
MLS# IG26086165
COMING SOON
$1,895,000
4 Beds
4 Baths
Listing Office: COMPASS
MLS# SR26089074
COMING SOON
$1,799,000
4 Beds
3 Baths
Listing Office: Pinnacle Estate Properties, Inc.
No similar listings found
Unfortunately, we don't have any similar listings at the moment. Please remove or change some of the selected filters.

This information is deemed reliable but not guaranteed. You should rely on this information only to decide whether or not to further investigate a particular property. BEFORE MAKING ANY OTHER DECISION, YOU SHOULD PERSONALLY INVESTIGATE THE FACTS (e.g. square footage and lot size) with the assistance of an appropriate professional. You may use this information only to identify properties you may be interested in investigating further. All uses except for personal, noncommercial use in accordance with the foregoing purpose are prohibited. Redistribution or copying of this information, any photographs or video tours is strictly
prohibited. This information is derived from the Internet Data Exchange (IDX) service provided by San Diego MLS. Displayed property listings may be held by a brokerage firm other than the broker and/or agent responsible for this display. The information and any photographs and video tours and the compilation from which they are derived is protected by copyright. Compilation © San Diego MLS. Updated: 29th April, 2026 1:20 PM (UTC)
prohibited. This information is derived from the Internet Data Exchange (IDX) service provided by San Diego MLS. Displayed property listings may be held by a brokerage firm other than the broker and/or agent responsible for this display. The information and any photographs and video tours and the compilation from which they are derived is protected by copyright. Compilation © San Diego MLS. Updated: 29th April, 2026 1:20 PM (UTC)
Listing Office: Coldwell Banker Realty



































































































































































































